Nous suivre
0

Maison sans travaux

Bazas (33430)
Réf : 280

BAZAS,

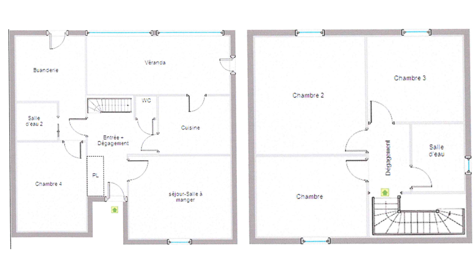
Proche de tous les commerces, situé à 3 mins du péage et 20mins de la gare de Langon, nous vous présentons cette maison rénovée.

Elle comprend au rdc une entrée, une cuisine équipée, un séjour , une véranda, une chambre, une salle d'eau, un wc, et un cellier.

Au premier étage vous trouverez une salle d'eau avec wc, un bureau et deux chambres supplémentaires.

A l'extérieur, vous profiterez d'une terrasse couverte et d'un garage indépendant.

La parcelle est étendue sur 679 m².

Peu de travaux sur cette maison prête à vous accueillir :

La chaudière au gaz de ville ainsi que l'isolation datent de 2021, les menuiseries sont pour la plupart en double vitrage. L'assainissement est au tout à l'égout.

Le maison est mitoyenne sur un côté.

Les informations sur les risques auxquels ce bien est exposé sont disponibles sur le site Géorisques : www.georisques.gouv.fr

Pour avoir plus d'information sur ce bien, n'hésitez pas à contacter Franck PRADALIER 07 66 41 21 40


Les informations sur les risques auxquels ce bien est exposé sont disponibles sur le site Géorisques
Pièce(s) 5
Chambre(s) 3

Caractéristiques du bien

Caractéristiques Valeurs
Code postal 33430
Surface habitable (m²) 97,60 m²
surface terrain 679 m²
Nombre de chambre(s) 3
Nombre de pièces 5
Nombre de niveaux 1
Nb de salle d'eau 2
Cuisine Séparée
Type de cuisine SEMI-EQUIPEE
Mode de chauffage Gaz de ville, Bois
Type de chauffage TRAD_TYPE_CHAUFF_CHAUDIERE, Cheminée
Format de chauffage Individuel, Individuel
Murs mitoyens 1
Nombre de garage 1
Nombre de parking 2
Année de construction 1960
Terrain piscinable OUI

Infos financières

Caractéristiques Valeurs
Taxe foncière annuelle 606 €
Ces biens peuvent vous intéresser