Nous suivre
0

PROPRIETE 14 HECTARES - MAISON ET DEPENDANCES

Langon (33210)
Réf : 363

A 5 minutes de La Réole et 20 minutes de Langon, sur la commune de Morizès

Découvrez cette propriété dans une environnement isolé de tout voisinnage (premier voisin à plus de 300 mètres)

Elle se compose d'une maison d'habitation à rénover, d'une étable (171 m²) et d'une grange (350 m²) réhabilitables en habitation ou idéales pour vos animaux (chevaux, etc.) votre matériel (TP, agricole, etc...)

Le tout sur 14 hectares de terres, aujourd'hui occupées par des vignes librement arrachables.

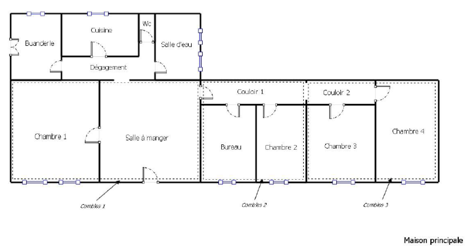
La maison d'habitation (147,27 m²) se compose d'un séjour, une cuisine, une salle d'eau, 5 chambres et un débarras. Une rénovation complète est à prévoir.

Cette propriété est idéale pour un regroupement familial, un projet agricole /équestre ou une résidence secondaire.

Pour plus d'informations et de photos, vous pouvez contacter Marion Baribeaud au 06.18.65.17.73

Prix du bien 366 000 €
Pièce(s) 6
Chambre(s) 5

Caractéristiques du bien

Caractéristiques Valeurs
Code postal 33210
Surface habitable (m²) 146,90 m²
surface terrain 14,38 ha
Nombre de chambre(s) 5
Nombre de pièces 6
Nombre de niveaux 1
Nb de salle d'eau 1
Cuisine Séparée
Mode de chauffage Bois, Fioul
Type de chauffage Cheminée, Radiateur
Format de chauffage Individuel, Central
Terrasse NON
Nombre de garage 2
Exposition Sud
Année de construction 1900

Infos financières

Caractéristiques Valeurs
Prix de vente honoraires TTC inclus 366 000 €
Prix de vente honoraires TTC exclus 350 000 €
Honoraires TTC à la charge acquéreur 4,57 %
Taxe foncière annuelle 1 261 €

Bilans énergétiques

DPE GES
Ce bien vous intéresse ?
Fieldset par défaut
Fieldset par défaut
Validation

* Champs obligatoires

Contacter l'agence
Validation
Les informations recueillies sur ce formulaire sont enregistrées dans un fichier informatisé par La Boite Immo agissant comme Sous-traitant du traitement pour la gestion de la clientèle/prospects de l'Agence / du Réseau qui reste Responsable du Traitement de vos Données personnelles. La base légale du traitement repose sur l'intérêt légitime de l'Agence / du Réseau. Elles sont conservées jusqu'à demande de suppression et sont destinées à l'Agence / au Réseau. Conformément à la loi « informatique et libertés », vous disposez des droits d’accès, de rectification, d’effacement, d’opposition, de limitation et de portabilité de vos données. Vous pouvez retirer votre consentement à tout moment en contactant directement l’Agence / Le Réseau. Consultez le site https://cnil.fr/fr pour plus d’informations sur vos droits. Si vous estimez, après avoir contacté l'Agence / le Réseau, que vos droits « Informatique et Libertés » ne sont pas respectés, vous pouvez adresser une réclamation à la CNIL. Nous vous informons de l’existence de la liste d'opposition au démarchage téléphonique « Bloctel », sur laquelle vous pouvez vous inscrire ici : https://www.bloctel.gouv.fr Dans le cadre de la protection des Données personnelles, nous vous invitons à ne pas inscrire de Données sensibles dans le champ de saisie libre.
Ce site est protégé par reCAPTCHA, les Politiques de Confidentialité et les Conditions d'Utilisation de Google s'appliquent.