Nous suivre
0

Maison récente 114m², de plain-pied, confort moderne

Langon (33210)
Réf : 425

Proche Langon. Construite en 2022, cette maison de plain-pied de 114m² répond aux normes actuelles et offre un cadre de vie confortable et fonctionnel. Aucun travaux à prévoir : il ne vous reste plus qu’à poser vos valises.

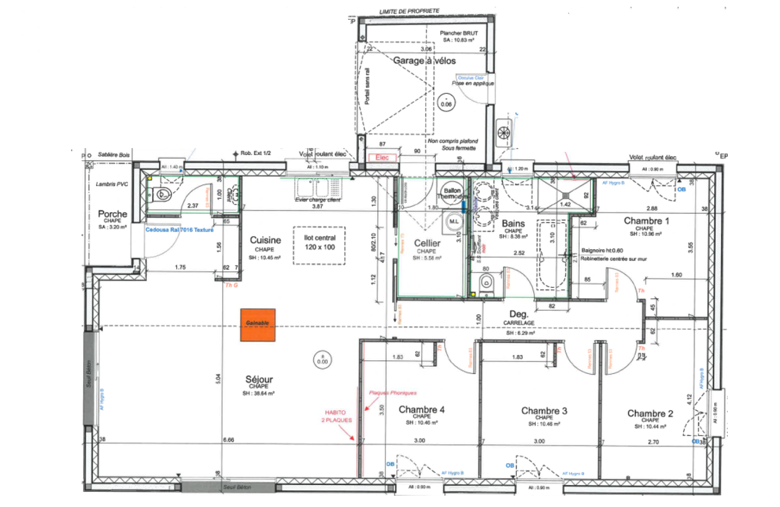
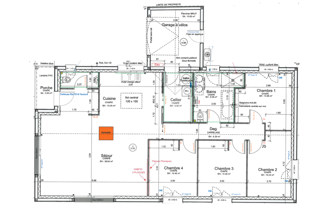
Vous découvrirez une entrée avec placard, une belle pièce de vie lumineuse avec une cuisine ouverte. La maison dispose de 4 chambres, d’une salle de bains avec douche à l’italienne et WC, ainsi que d’un cellier, d'un WC séparé et d’un local de rangement pratiques au quotidien.

À l’extérieur, une terrasse à double exposition vous permettra de profiter pleinement des beaux jours. Parcelle de 643m².
Les équipements modernes assurent un confort optimal : pompe à chaleur réversible, tout-à-l’égout, clôtures, portail électrique et visiophone.

La décoration est moderne et épurée, convenant aussi bien à une famille, des séniors ou un jeune couple.

Située à proximité des commodités, écoles, infrastructures sportives et culturelles, la maison bénéficie également d’un accès rapide à l’autoroute et à la gare.

Pour en savoir plus sur ce bien alliant modernité et confort, contactez Virginie Pès au 06.17.32.68.13, agent commercial Rsac 828808279.

Les risques auxquels ce bien est exposé sont consultables sur www.géorisques.gouv.fr.

découvrir le bien
Prix du bien 278 000 €
Pièce(s) 5
Chambre(s) 4

Caractéristiques du bien

Caractéristiques Valeurs
Code postal 33210
Surface habitable (m²) 114 m²
surface terrain 643 m²
Surface loi Carrez (m²) 114 m²
Nombre de chambre(s) 4
Nombre de pièces 5
Nombre de niveaux 1
Nb de salle de bains 1
Cuisine Américaine
Type de cuisine Equipée
Mode de chauffage Pompe à chaleur
Type de chauffage Air pulsé
Format de chauffage Individuel
Terrasse OUI
Nombre de garage 1
Nombre de parking 1
Année de construction 2022

Infos financières

Caractéristiques Valeurs
Prix de vente honoraires TTC inclus 278 000 €
Prix de vente honoraires TTC exclus 265 000 €
Honoraires TTC à la charge acquéreur 4,91 %

Bilans énergétiques

DPE GES
Ce bien vous intéresse ?
Fieldset par défaut
Fieldset par défaut
Validation

* Champs obligatoires

Contacter l'agence
Validation
Les informations recueillies sur ce formulaire sont enregistrées dans un fichier informatisé par La Boite Immo agissant comme Sous-traitant du traitement pour la gestion de la clientèle/prospects de l'Agence / du Réseau qui reste Responsable du Traitement de vos Données personnelles. La base légale du traitement repose sur l'intérêt légitime de l'Agence / du Réseau. Elles sont conservées jusqu'à demande de suppression et sont destinées à l'Agence / au Réseau. Conformément à la loi « informatique et libertés », vous disposez des droits d’accès, de rectification, d’effacement, d’opposition, de limitation et de portabilité de vos données. Vous pouvez retirer votre consentement à tout moment en contactant directement l’Agence / Le Réseau. Consultez le site https://cnil.fr/fr pour plus d’informations sur vos droits. Si vous estimez, après avoir contacté l'Agence / le Réseau, que vos droits « Informatique et Libertés » ne sont pas respectés, vous pouvez adresser une réclamation à la CNIL. Nous vous informons de l’existence de la liste d'opposition au démarchage téléphonique « Bloctel », sur laquelle vous pouvez vous inscrire ici : https://www.bloctel.gouv.fr Dans le cadre de la protection des Données personnelles, nous vous invitons à ne pas inscrire de Données sensibles dans le champ de saisie libre.
Ce site est protégé par reCAPTCHA, les Politiques de Confidentialité et les Conditions d'Utilisation de Google s'appliquent.