Nous suivre
0

Entre Bazas et Langon, maison de 187m²

Langon (33210)
Réf : 257

Dans un magnifique parc sans voisinage proche, nous vous proposons de venir découvrir cette maison de 187m² idéalement placée, à 4 minutes de Langon !

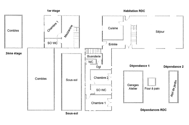
Vous trouverez au rez-de-chaussée une entrée, un grand salon séjour de 56m² avec un poêle à bois et un plafond cathédrale, une cuisine équipée séparée, une salle d'eau et deux chambres.

Au premier étage, un palier pour y installer votre bureau, une troisième chambre et une salle d'eau avec un wc. Le bien possède une cave en sous-sol comprenant, un espace cave à vin, un grand bureau, ainsi qu'un espace rangement.

Une terrasse couverte de 42 m² avec son barbecue vous permettra de passer un moment agréable avec toute votre famille.

Sur le fond du jardin, vous disposerez d'un double garage avec atelier et abri voiture. Le terrain est piscinable. Le chauffage de la maison s'effectue au moyen d'une chaudière au fioul de 2011 et d'un poële à bois. L'assainissement est individuel et aux normes. Les menuiseries sont en simple vitrage. Le parc arboré de + de 12 000 m² est entièrement clôturé.

Pour plus d'informations, veuillez contacter Franck PRADALIER 07 66 41 21 40

Les informations sur les risques auxquels ce bien est exposé sont disponibles sur le site Géorisques : www.georisques.gouv.fr


Les informations sur les risques auxquels ce bien est exposé sont disponibles sur le site Géorisques
découvrir le bien
Pièce(s) 6
Chambre(s) 3

Caractéristiques du bien

Caractéristiques Valeurs
Code postal 33210
Surface habitable (m²) 187 m²
surface terrain 1,22 ha
Surface loi Carrez (m²) 187 m²
Nombre de chambre(s) 3
Nombre de pièces 6
Nombre de niveaux 1
Nb de salle de bains 1
Nb de salle d'eau 1
Cuisine Séparée
Type de cuisine Equipée
Mode de chauffage Bois, Fioul
Type de chauffage Cheminée, TRAD_TYPE_CHAUFF_CHAUDIERE
Format de chauffage Individuel, Individuel
Terrasse OUI
Nombre de garage 2
Nombre de parking 4
Année de construction 1983
Terrain piscinable OUI
Terrain arboré OUI

Infos financières

Caractéristiques Valeurs
Taxe foncière annuelle 1 098 €
Ces biens peuvent vous intéresser